Pause Play
Top Image
Top Image
Top Image
Top Image

Ringeriksveien 68, 3412 Lierstranda


HOVEDPUNKTER

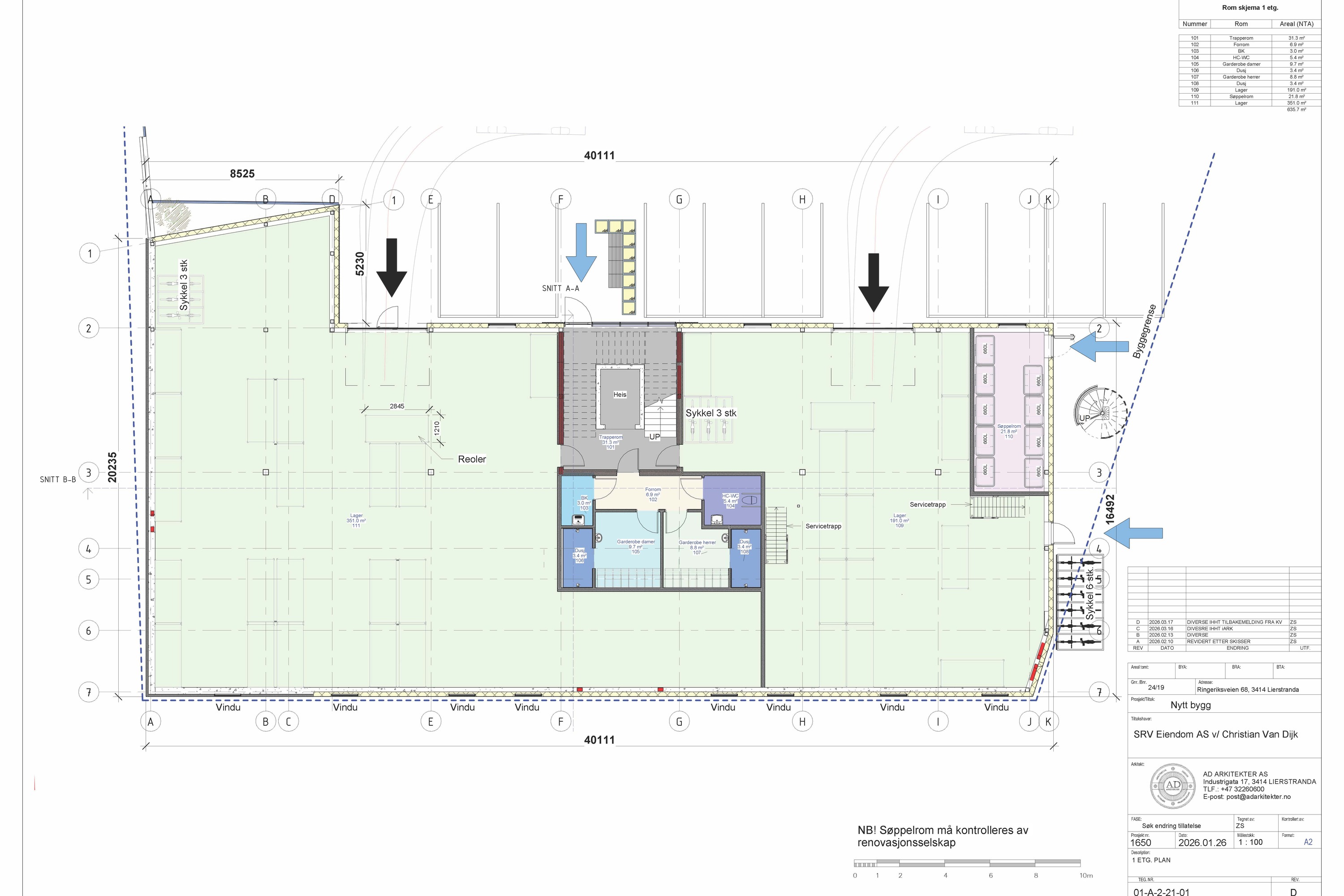
Bygningsareal (BTA): 1200

Type: Kombinasjonslokale, Kontor, Lager / logistikk

Fasiliteter:

Nytt næringsbygg under oppføring på Kjellstad i Lier. Umiddelbar nærhet til E18.
Eiendommen vil bestå av et moderne kombinasjonsbygg over tre etasjer, ideelt for virksomheter med behov for både kontor og lager.
Totalt ledig areal utgjør ca. 1.200 kvm. Planlagt ferdigstillelse er Q3 2027.

Ledig areal i eiendommen:
1.etg: Lager ca. 400 kvm.
2.etg: Kontor fra ca. 400-800 kvm. (skreddersys leietakers ønsker og behov)

Beliggenheten gir svært god tilgjengelighet til hele Oslofjord-regionen, noe som gjør eiendommen særlig attraktiv for virksomheter innen logistikk, handel, service og administrasjon.

Eiendommen har en strategisk plassering på Kjellstad i Lier, et veletablert næringsområde med kort avstand til hovedtransportårer.

Med umiddelbar nærhet til E-18 får man effektiv tilkomst til sentrale knutepunkter i regionen:

Drammen: ca. 10 minutter.

Oslo: ca. 30 minutter.

Asker: Ca. 10 minutter.

Området på Kjellstad er i sterk utvikling og huser allerede en rekke etablerte næringsaktører.

Om bygget og lokalene

Det planlagte bygget vil fremstå moderne både arkitektonisk og teknisk, og vil tilby effektive og fleksible arealer tilpasset dagens krav.

Kontorarealene vil få gode lysforhold og fleksible løsninger som kan tilpasses leietakers behov. Lagerdelen vil være godt egnet for virksomheter som har behov for kombinasjonen kontor og lager.

Byggets kvaliteter:

- Nytt og moderne kombinasjonsbygg
- Svært god beliggenhet ved E18
- Effektiv logistikk og enkel adkomst
- Fleksible kontorløsninger
- Kombinasjon av kontor og lager
- Attraktivt næringsområde i utvikling
- Parkering for både kunder og ansatte
- Sykkelparkering
- Ca. 5 meter fri takhøyde på lager